01
6 Figtree Avenue, Randwick NSW
3 Beds — 2 Baths
Idyllic Semi with a Lush Garden Oasis & City Views
In a prestigious North Randwick pocket, this three bedroom semi creates an idyllic setting for family life. A charming vision on its tree-lined avenue complete with picket fencing and solid double bricks, it offers a tranquil parkside address.
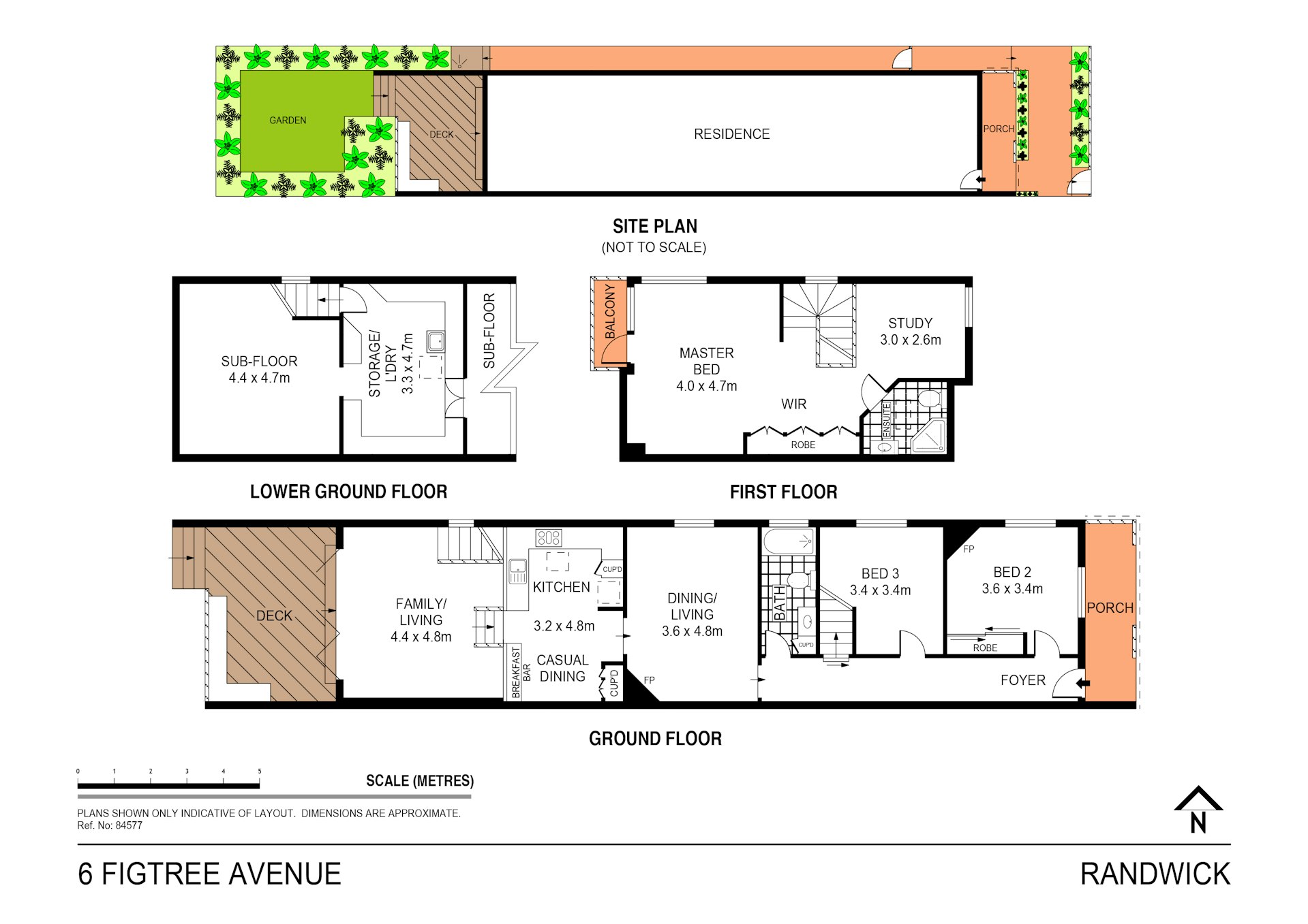
Deceptively spacious interiors make use of every square metre on title, with a well-considered floor plan designed for flow and family functionality. A sequence of living zones offer flexibility and connection, with easy transition encouraged to a sun-deck and a lush garden oasis.
Two bedrooms and a modern family bathroom complete the lower level, with a private whole-floor parent's retreat featuring an ensuite, study and city view balcony crowning the home.
Northern light, reverse cycle air-conditioning and a huge basement cellar and storage space offer added advantage to this warm and inviting sanctuary.
From its quiet cul-de-sac the home is placed just moments from the green edges of Queens and Centennial Parks, Frenchmans Road grocers, delis and cafes, prestigious Eastern Suburbs schools and buses.
- 3 bed | 2 bath | study
- Split level floor plan with multiple living zones
- Formal living area set beside an original fireplace
- Gas cooking, European appliances, breakfast nook
- Sun splashed deck complete with bench seating
- Lush Secret Gardens designed outdoor space
- Bamboo hedging, level lawns, tropical landscape
- Parent's retreat with ensuite, balcony & study
- Modern family bathroom with heated towel rails
- Travertine entry courtyard framed by hedging
- Tessellated tiles, high ceilings, period hallway
- Built-in robes, bonus basement storage/cellar
- Just minutes from Bondi Junction & beaches
TRG is synonymous with Sydney's elite property. A real estate agency built on a commitment to challenge the traditional and continually deliver for our clients.
Please fill out a few simple details so we can assist with your enquiry. We will be in touch as soon as possible.










