01
308/168 Kent Street, Millers Point NSW
2 Beds — 2 Baths — 1 Cars
Striking City Residence 240sqm (approx) with Impressive Outdoor Entertaining in The Prestigious Observatory Tower
Exceptionally located in one of Sydney's most prestigious and tightly-held developments, this striking contemporary apartment provides an outstanding city residence within a stroll of Barangaroo's world class dining.
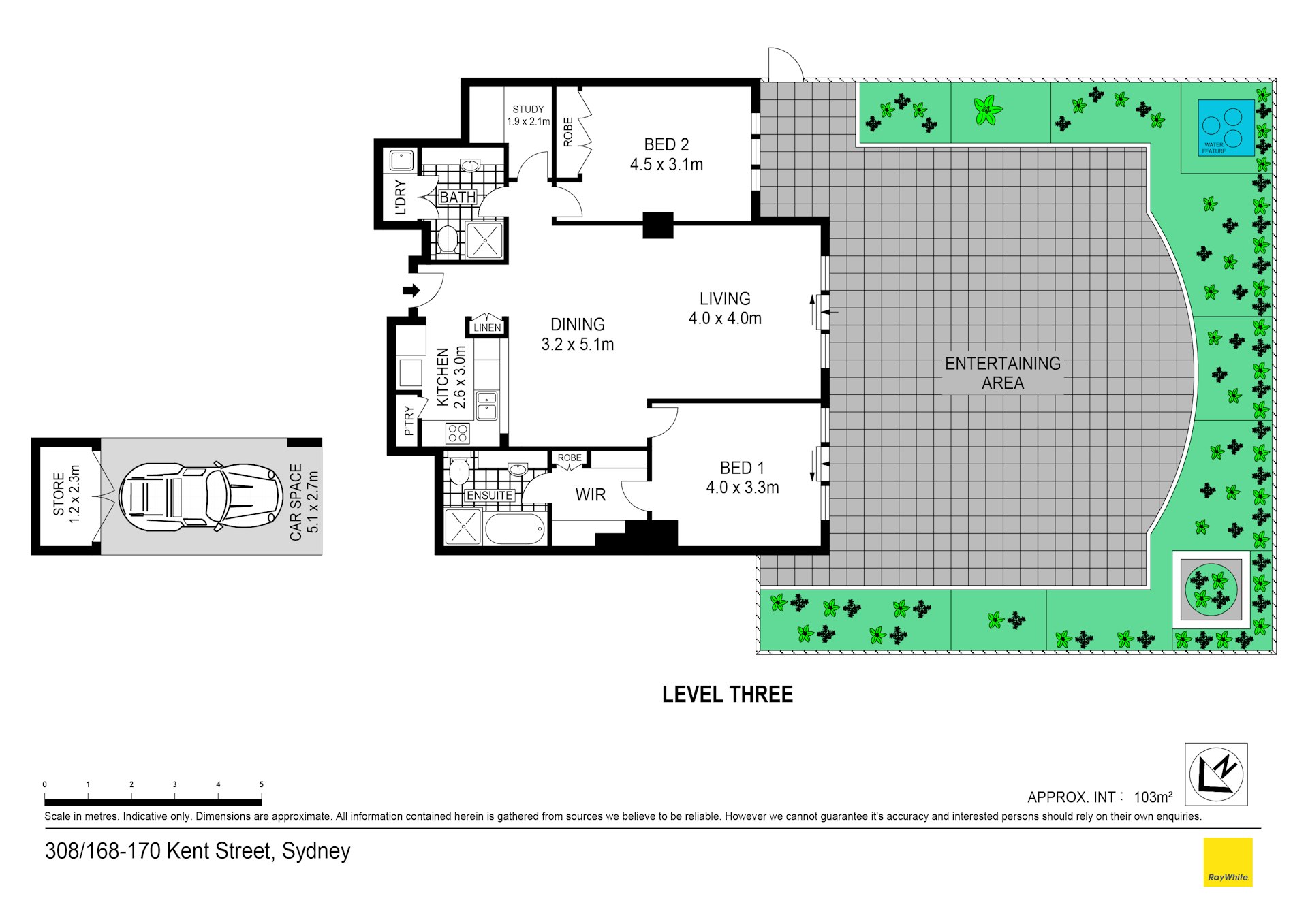
Brilliantly designed and finished to superior standards, it features a generous open plan living and dining area as well as a modern granite kitchen with quality stainless steel gas appliances. Interiors extend to a fabulous sun bathed terrace, perfect for large scale entertaining and set amid tranquil landscaped gardens.
The residence comprises two generous bedrooms, the second bedroom is appointed with a built-in wardrobe, while the master features a walk-in wardrobe and a stylish ensuite.
The Observatory Tower features an opulent entrance foyer where residents enjoy a 24 hour concierge service as well as grand common areas and a library. Further highlights of the complex include an 18 metre indoor swimming pool, spa and sauna as well as a fully equipped gymnasium.
Complete with lift access to secure basement parking, this extraordinary city apartment is positioned a walk to Barangaroo, The Rocks, historic pubs and eateries, Circular Quay, The Opera House and all the attractions of the CBD.
- 2 bed | 2 bath | study | 1 car
- Striking city residence in the exclusive Observatory Tower
- Grand entrance foyer with convenient 24 hour concierge
- Opulent common areas include library and elegant lounge
- Sophisticated living/dining flow freely to the outdoors
- Huge sunlit terrace perfect for large scale entertaining
- Beautifully landscaped gardens and tranquil water feature
- Sleek granite kitchen with stainless steel gas appliances
- Generous bedrooms, master bedroom w/ WIR & stylish ensuite + courtyard access
- Second bedroom with built-in robe overlooking the courtyard
- Seperate study, tiled living/dining areas, carpeted bedrooms
- Complex 18m indoor pool and fully equipped gymnasium
- Lift access to basement parking w/ car space, storage room
- Stroll to Barangaroo shopping precinct, world class dining
- Walk to The Rocks, Circular Quay, Opera House and CBD
- Low strata rates of approx. $1,550 per quarter
- Automated CBUS lighting system including Wiser home control
- Integrated Bose Lifestyle zoned sound system
TRG is synonymous with Sydney's elite property. A real estate agency built on a commitment to challenge the traditional and continually deliver for our clients.
Please fill out a few simple details so we can assist with your enquiry. We will be in touch as soon as possible.


















